Lokal użytkowy Kołobrzeg Starówka, Armii Krajowej
Kołobrzeg Pokaż na mapie ›
Dodane: Środa, 28 Styczeń, 2026 21:42
7 000 zł
Szczegóły ogłoszenia
- Kategoria: Biura i lokale / Do wynajęcia
- Przeznaczenie:Inne przeznaczenie
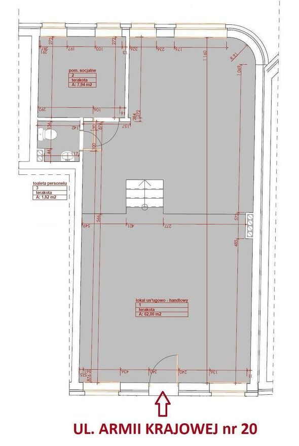
- Powierzchnia:71 m2
- Sprzedaż:Pośrednik
- Cena: 7 000 zł
Opis oferty
Rezerwacja do 06.02.26TOP LOKALIZACJA
Do wynajęcia lokal użytkowy o powierzchni 71,76 m, położony w samym sercu Kołobrzegu, na starówce, przy ul. Armii Krajowej 20.To jedna z najbardziej rozpoznawalnych i uczęszczanych ulic miasta intensywny ruch pieszy gwarantowany przez cały dzień.
Lokal znajduje się w bezpośrednim sąsiedztwie Urzędu Miasta, ZUS, Katedry, a także popularnych punktów handlowo-usługowych takich jak Rossmann czy apteka Gemini.
Jest to doskonale znane miejsce dla mieszkańców i turystów.
Zestawienie pomieszczeń lokalu:
- główna sala sprzedaży,
- druga mniejsza sala sprzedaży, (wejście po czterech stopniach)
- wc
- biuro, magazynek z oknami.
Najważniejsze atuty lokalu:
- lokalizacja ścisłe centrum miasta
- dwie witryny idealne do ekspozycji i reklamy
- lokal przy ruchliwej ulicy i głównym ciągu pieszym
- klimatyzacja
- lokal odświeżony i pomalowany po poprzednim najemcy
- parking ogólnodostępny po drugiej stronie ulicy
- bardzo dobra widoczność i łatwy dostęp dla klientów
Lokal idealnie sprawdzi się pod:
- sklep
- biuro
- salon usługowy (kosmetyczka, fryzjer, gabinet masażu itp)
- gabinet lekarski
- działalność handlową lub usługową wymagającą dobrej ekspozycji
Ogrzewanie:
- elektryczne.
Wirtualny spacer:
sb360.online/91tng5
Warunki najmu:
umowa na czas określony (lub do indywidualnego ustalenia)
Opłaty:
- czynsz najmu: 7.000 zł netto + 23% VAT
- opłaty do wspólnoty: ok. 694 zł
- media według zużycia
- kaucja: 14.000 zł
Wydanie:
Lokal dostępny od marca 2026 roku
Przedstawione informacje nie stanowią oferty w rozumieniu przepisów Kodeksu Cywilnego. Dane dotyczące nieruchomości oparte są na informacjach uzyskanych od właściciela nieruchomości i mogą różnic się od stanu faktycznego. Podane ceny i czynsze mogą ulec zmianie. Zalecamy osobiste zapoznanie się ze stanem nieruchomości. Zapraszamy !
Oferta wysłana z programu IMO dla biur nieruchomości
Numer oferty: 23204
Sprawdź zainteresowanie tym ogłoszeniem
Wyświetlenia
Data dodania
Ostatnio widziany
Obserwujących
Wysłane zapytania
Odsłony telefonu
Powiadom o podobnych ogłoszeniach
Lokalizacja: Kołobrzeg
Kategoria: Nieruchomości » Biura i lokale » Do wynajęcia
Cena: od 6000 zł do 8000 zł Powierzchnia : od 60 m2 do 82 m2
Chcę otrzymywać powiadomienia o nowych ofertach
- Wypromuj ogłoszenie
- Zgłoś naruszenie
- Drukuj ulotkę
- Edytuj/usuń ogłoszenie
- Udostępnij ogłoszenie
- Dodaj na Facebook































